update 11.01.2007
Or q#j-o
|
Geburts- oder Eigenname: Qebeh (qbH)
(Abydos 8), Qebehu (qbHw)
(PTurin 2.18, Saqqara 2)
|
|
Vater: Ad-jib (von Beckerath)?, Semerchet (Grimal) ?
Ehefrau: - Söhne: - Töchter: - |
Ob der Vater des Hor Qa-a Semerchet oder Ad-jib heist, darüber ist man sich nicht einig. Manetho nennt für ihn 26 Regierungsjahre; die jüngste Forschung hält dies für die unterste Grenze, zumal zwei Sedfeste von Qa-a belegt sind. Auf dem Palermostein ist nur das erste Jahr erhalten, jedoch kennt man drei Jahrestäfelchen, eines nennt das "Horusgeleit".
Hor Qa-a war der letzten König der 1. Dynastie. Hinweise auf Zwistigkeiten beim Übergang zur 2. Dynastie gibt es nicht.
Auch diesem König werden zwei Gräber zugeordnet: in Abydos (Grab Q) und in Saqqara
(S 3505). Neben den üblichen Gefäßsiegeln mit seinem
Namen fand man in seinem Abydos-Grab zwei Stelen; sie befinden sich heute in den
Museen von Kairo und Pennsylvania. Kürzliche Nachuntersuchungen brachten
Fragmente eines Holzsarkophages und der Grabausstattung ans Licht. Der Brauch, mit dem Tod des Königs auch die
königlichen Bediensteten mit zu bestatten, hat mit Hor Qa-a nachgelassen (nur 26 Nebengräber) und in der 2. Dynastie ganz aufgehört.

Abydos, Lageplan Grab des Qa-a (01-09-02)

Abydos, Grab des Qa-a (01-09-03)
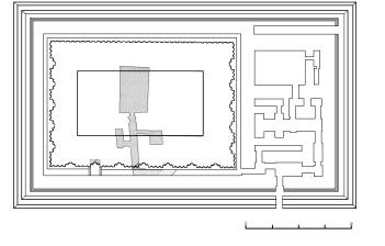
Saqqara: Das Grab Nr. 3505 ist das des Würdenträgers Merika (Nr. 3505) oder vielleicht doch des Qa-a. Reste der Bemalung sind noch erkennbar. Erstmals ist der Mastaba im Norden ein Totentempel vorgelagert. Bruchstücke zweier Holzstatuen hat man im Opferraum gefunden. Die Mastaba ist von einer Lehmziegelmauer umgeben und wird mit dieser Anordnung zum Vorbild der Anlagen aus späterer Zeit.
|
Saqqara, Mastaba 3505 (01-09-04) |
Saqqara, Mastaba 3505, Riss (01-09-05) |
Quellen:
Schneider, Th., Lexikon der Pharaonen. Düsseldorf 2002
von Beckerath, J., Münchner Ägyptologische Studien (MÄS 46 und 49) Mainz 1997/99